Ga naar inhoud

Te koop: appartement Looierstraat 46-3 6811 AZ Arnhem

Beschikbaar

Bezichtiging plannen

€ 279.000,- k.k.

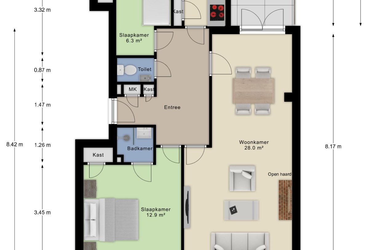
Wonen in het bruisende centrum van Arnhem? Dit goed onderhouden appartement aan de Looierstraat bevindt zich op de derde (bovenste) verdieping, op loopafstand van alles wat de stad te bieden heeft. De lichte woonkamer met grote ramen zorgt voor een prettige lichtinval, en dankzij de twee slaapkamers (3 slaapkamers makkelijk mogelijk) is er ruimte genoeg voor werken, logeren of gezinsleven. Met 68m² aan woonoppervlak en openslaande deuren naar het zonnige dakterras is dit een plek waar je elke dag met plezier thuiskomt.

Bijzonderheden: 
+ Gelegen op een superleuke plek in het centrum van Arnhem
+ Gedeeltelijk zicht over andere gebouwen op o.a. de Eusebiuskerk
+ Uitstekend bereikbaar met het openbaar vervoer
+ Op loopafstand van zowel de stadswinkels als het groene Sonsbeekpark
+ Elektrische zonwering voorzijde
+ Ruimte voor plaatsen fietsen
+ Goed onderhouden
+ Ruim 3-kamerappartement, 4e kamer is eenvoudig mogelijk.
+ VvE-bijdrage: € 88,93 per maand
+ Parkeren via vergunning mogelijk (circa € 145,- per jaar)
 
Indeling:
Begane grond
Via de centrale entree op de begane grond betreed je het gebouw. Hier vind je een intercomsysteem voor extra veiligheid én een handige, overdekte plek om je fiets te stallen.

Derde verdieping
De woonkamer, een lichte en prettige leefruimte met grote ramen die zorgen voor een fijne lichtinval en een levendig uitzicht. De kamer heeft volop ruimte voor een comfortabele zithoek en een gezellige eetplek. De decoratieve schouw met traditionele uitstraling, al is deze niet meer in gebruik, voegt karakter en sfeer toe aan het geheel. Het heeft openslaande deuren, zodat je het dakterras en de woonkamer met elkaar kunt verbinden.
 
De keuken, die naast functioneel ook veel charme heeft dankzij de authentieke granito vloer. De keuken is voorzien van moderne inbouwapparatuur, waaronder een inductiekookplaat, een vaatwasser en een combi-oven met magnetronfunctie. 
 
De badkamer is compact maar efficiënt ingedeeld. Hier vind je een douche, een wastafelmeubel en een elektrapunt, wat het gebruik van apparaten als een föhn of scheerapparaat extra makkelijk maakt.
 
De woning beschikt over twee slaapkamers. Beide kamers zijn voorzien van ingebouwde kasten, wat zorgt voor extra opbergruimte zonder dat het ten koste gaat van de leefruimte. 
 
Dakterras
Het knusse dakterras van circa 5 m² ligt op het noorden, een heerlijke plek voor je ochtendkoffie of een borrel in de avondzon. Extra leuk: vanuit de keuken heb je een doorgeefraam naar het terras, perfect om als barretje te gebruiken tijdens gezellige etentjes buiten. 
 
Locatie:
Wonen in de Looierstraat betekent leven in het bruisende centrum van Arnhem. Winkels, cafés, restaurants en culturele hotspots liggen praktisch om de hoek. Toch is de straat verrassend rustig, met vooral fietsers die de straat kenmerken.
 
Of je nu snel een boodschap doet, uitgebreid wilt shoppen of een avondje uit plant: alles is binnen handbereik. Ook sportfaciliteiten en supermarkten zijn dichtbij. Voor wie veel reist: het Centraal Station is op loopafstand en binnen enkele minuten rijd je de A325, A12 en A50 op.
 
En toch hoef je voor rust en natuur niet ver te zoeken. Het prachtige Sonsbeekpark ligt om de hoek en met een korte fietstocht sta je midden in het groen van de Veluwezoom en andere bosrijke gebieden rondom Arnhem.

Voorzieningen:
+ Bushalte — 131 m
+ Centrum — 96 m
+ Afrit — 2,9 km
+ Kinderopvang — 1,7 km
+ Speeltuin — 335 m
+ School — 215 m
+ Supermarkt — 96 m
+ Treinstation — 469 m

Aanvaarding:
Per direct.
 
Klinkt dit als jouw nieuwe thuis? Neem contact op voor een bezichtiging.
 
Disclaimer
De opgegeven maten zijn circa maten. Afwijkingen leiden niet tot enig recht op schadevergoeding. Aan deze informatie kunnen geen rechten worden ontleend.

  • 68 m2
  • 2

Kenmerken Looierstraat 46-3

Overdracht

Vraagprijs€ 279.000,- k.k.
AanvaardingDirect

Oppervlaktes en inhoud

Woonoppervlakte68 m2
Inhoud254 m3

Bouw

SoortPortiekflat
BouwvormBestaande bouw
Bouwjaar1955
Dak typePlat dak
IsolatievormenDakisolatie, Muurisolatie, Dubbelglas
EnergielabelF

Indeling

Aantal verdiepingen1
Aantal kamers3
Aantal slaapkamers2
Aantal badkamers1

Maandlasten

Ligging Looierstraat 46-3

Voorzieningen

Centraal gelegen informatie over de buurt

Aantal inwoners

In de gemeente

155.699

Vergelijkbaar woningaanbod