Ga naar inhoud

Te koop: woonhuis Robert de Vriesstraat 19 6836 ML Arnhem

Roel Willemsen Garantiemakelaars Arnhem
Neem contact met mij op

Verkocht o.v.

€ 485.000,- k.k.

Sommige huizen voelen meteen goed zodra je binnenkomt, Robert de Vriesstraat 19 is er zo één. Een nette, goed onderhouden woning met vier slaapkamers, een open keuken, een lichte woonkamer met uitzicht op de tuin en een praktische garage. Hier is met zorg en aandacht gewoond, en dat merk je aan alles. Zo heeft de woning ook een uitstekend energielabel, maar liefst A++. 

Gelegen in de kindvriendelijke wijk Rijkerswoerd is dit een perfect huis voor doorstromers, jonge gezinnen of iedereen die wil verhuizen zonder te hoeven klussen.

Bijzonderheden van de woning: 
+ Hybride warmtepomp (2024)
+ Mechanische ventilatie gestuurd op vochtigheid en CO2 (2024)
+ 8 zonnepanelen
+ Energielabel A++
+ Keuken voorzien van nieuwe deuren (2020)
+ Buitenkozijnen geschilderd door erkend schildersbedrijf (2022)
+ Veel privacy door vrije ligging aan de achterzijde. 
+ Parkeerplek op eigen terrein
+ Kindvriendelijke buurt

Indeling:
Begane grond
De ruime woonkamer heeft grote raampartijen, volop ruimte voor een gezellige zithoek en openslaande deuren naar de tuin. Bij de open keuken is er voldoende plek voor een grote keukentafel, zodat je tijdens het koken er gezellig bij kan zitten. De keuken is voorzien van een ruim aanrechtblad, een kookplaat, gasfornuis, afzuigkap, oven en koelkast.

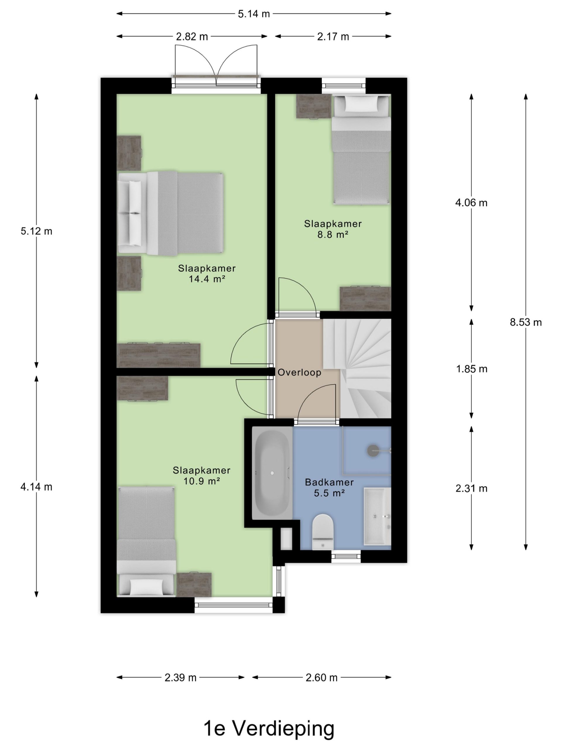
Eerste verdieping
Op de eerste verdieping vind je drie comfortabele slaapkamers en een badkamer. Vanuit de slaapkamer aan de tuinzijde kijk je via het charmante Franse balkon uit op het groen. De badkamer is voorzien van zowel een douche als een ligbad, een wastafelmeubel en een toilet. Dankzij het raam is er volop daglicht en natuurlijke ventilatie.

Tweede verdieping
Deze verdieping heeft een royale vierde slaapkamer met twee ingebouwde kasten en een overloop met de cv-ketel en aansluitingen voor het witgoed. Achter de schotten is extra opbergruimte.

Buitenruimte
De achtertuin gelegen op het noord/oosten van circa 87 m² is een heerlijke plek om te ontspannen. De tuin is speels aangelegd met verschillende paden, veel groen en meerdere zitjes om te relaxen. De achtertuin grenst direct aan de achtergelegen groenstrook.

Locatie:
De woning is gelegen in de kindvriendelijke wijk Rijkerswoerd. De lichte kleurstellingen en ruime opzet van de buurt maken het een ideale plek voor gezinnen, starters en ouderen. Kinderen kunnen hier vrij spelen in de rustige omgeving, terwijl jij geniet van de nabijheid van het winkelcentrum, scholen, kinderopvang en openbaar vervoer, allemaal op loopafstand. Voor ontspanning vind je het Zeegbos, Park Lingezegen en de Rijkerswoerdse plassen dichtbij. De fietssnelweg tussen Arnhem en Nijmegen loopt door de wijk. Bovendien zijn belangrijke uitvalswegen zoals de Pleyroute naar Arnhem-Noord, A15, A325 en A50 snel bereikbaar.

Bereikbaarheid:
+ Treinstation 3,5 km
+ Bushalte 245 m
+ Centrum 3,0 km
+ Snelweg afrit 3,0 km
+ Supermarkt 334 m
+ Kinderopvang 2,9 km
+ School 172 m
+ Speeltuin 51 m

Aanvaarding:
In overleg.

Zien we jou binnenkort? Bel snel voor een bezichtiging!

De vermelde afmetingen zijn circa maten. Eventuele afwijkingen tussen de werkelijke en opgegeven circa maten/oppervlakten leiden niet tot enig recht op schadevergoeding. Er kunnen geen rechten worden ontleend aan de inhoud van deze specificaties.

  • 119 m2
  • 214 m2
  • 4

Kenmerken Robert de Vriesstraat 19

Overdracht

Vraagprijs€ 485.000,- k.k.
AanvaardingIn overleg

Oppervlaktes en inhoud

Perceel oppervlakte214 m2
Woonoppervlakte119 m2
Inhoud482 m3

Bouw

SoortEengezinswoning
BouwvormBestaande bouw
Bouwjaar1997
Dak typeZadeldak
IsolatievormenDakisolatie, Muurisolatie, Vloerisolatie, Dubbelglas
EnergielabelA++

Indeling

Aantal verdiepingen3
Aantal kamers5
Aantal slaapkamers4
Aantal badkamers1

Maandlasten

Ligging Robert de Vriesstraat 19

Voorzieningen

Centraal gelegen informatie over de buurt

Aantal inwoners

In de gemeente

155.699

Leeftijd

in percentages van totaal

Huishoudsamenstelling

in percentages van totaal

29%

20% NL

25%

20% NL

46%

20% NL

Vergelijkbaar woningaanbod