Ga naar inhoud

Te koop: woonhuis Van Diemenhof 37 6828 RE Arnhem

Roel Willemsen Garantiemakelaars Arnhem
Neem contact met mij op

Verkocht

€ 369.000,- k.k.

Wonen in alle rust, maar toch op korte afstand van het bruisende centrum van Arnhem? Het kan! Deze eengezinswoning met 3 slaapkamers (4 mogelijk) ligt heerlijk rustig in een straat met een groenstrook voor de deur. Binnen geniet je van een strakke, moderne keuken en buiten van een diepe tuin op het oosten, ideaal om ’s ochtends van de zon te genieten. En het mooiste? Dankzij de overkapping kun je het hele jaar door van je tuin genieten, regen of zonneschijn!

Woning highlights:
+ Woonoppervlakte: 101 m² 
+ Perceeloppervlakte: 117 m²
+ Bouwjaar: 1997
+ Overkapping: 14 m²
+ Externe bergruimte: 6 m²
+ Keuken (2020) met inbouwapparatuur (2019)
+ Vloerverwarming begane grond
+ Aantal kamers: 5

Begane grond:
Bij binnenkomst betreed je de hal, die toegang biedt tot een ingebouwde kast, de meterkast, het toilet, de trap naar de eerste verdieping en de woonkamer. De hal is afgewerkt met een plavuizen vloer, die doorloopt over de gehele begane grond, met uitzondering van het toilet. Het toilet is voorzien van een fonteintje.

De open keuken is circa 8 m² groot en modern afgewerkt met beige matte kastjes en een wit marmerlook aanrechtblad. De keuken is van alle gemakken voorzien: kookplaat, afzuigkap, magnetron, oven en vaatwasser.

De lichte woonkamer van ongeveer 22 m² biedt voldoende ruimte voor een eetgedeelte en heeft een deur die toegang geeft tot de overkapping in de tuin.

Eerste verdieping:
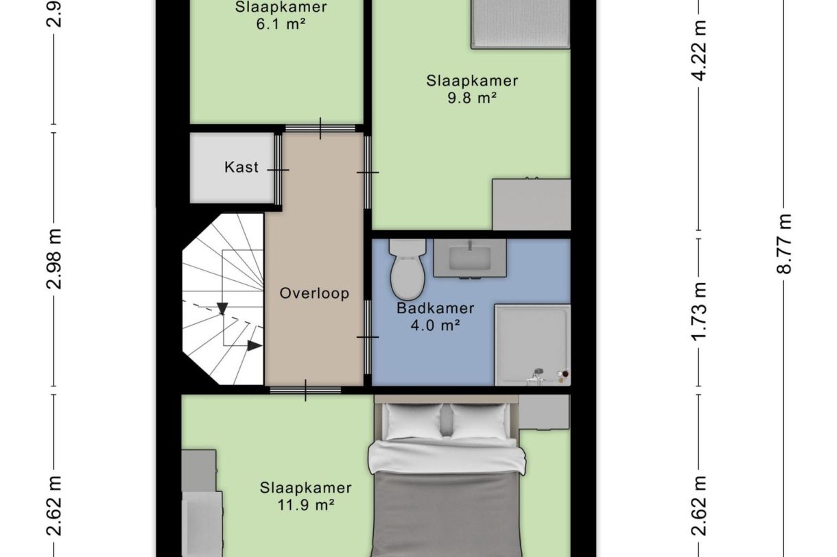
Via de trap in de hal bereik je de eerste verdieping, waar je drie slaapkamers vindt van circa 6 m², 10 m² en 12 m², allemaal voorzien van een laminaatvloer. De badkamer van ongeveer 4 m² is uitgerust met een douche, wastafel met meubel en een toilet. Ook bevindt zich op deze verdieping een bergkast.

Tweede verdieping:
Op de tweede verdieping vind je een multifunctionele ruimte van ongeveer 25 m², voorzien van knieschotten. Hier is ook de aansluiting voor witgoed en cv-ketel. Hier kan nog eenvoudig een 4e slaapkamer gemaakt worden.

Tuin:
De voortuin is bestraat, met genoeg ruimte voor een gezellig terrasje.
De onderhoudsvriendelijke achtertuin van circa 54 m² ligt op het oosten en is geheel bestraat. Aan de zijkant van de tuin bevindt zich een stenen plantenbak. De tuin heeft een overkapping van ongeveer 14 m², waar je het hele jaar door buiten kunt zitten. Achterin de tuin is een tweede overkapping van ongeveer 8 m², ideaal voor het stallen van fietsen of scooters. Aansluitend aan deze overkapping vind je een berging van 6 m². Ook heeft de tuin een handige achterom.

Locatie: 
Gelegen in een rustige woonwijk met uitsluitend bestemmingsverkeer, biedt deze kindvriendelijke omgeving een speeltuin direct aan de groenstrook aan de voorzijde van de woning. Voor de dagelijkse boodschappen is de Aldi om de hoek, terwijl winkelcentra Presikhaaf en De Lely eveneens snel te bereiken zijn. Zin in wat meer levendigheid? Het bruisende centrum van Arnhem, met een breed scala aan winkels en horecagelegenheden, ligt binnen handbereik. Ook Klarendal en de Steenstraat bevinden zich op korte afstand. Daarnaast zijn de uitvalswegen N325, A12, N224 en N225 snel bereikbaar en is het openbaar vervoer uitstekend geregeld.

Bereikbaarheid:
+ Treinstation 1,52 km
+ Bushalte 0,14 km
+ Centrum 2,61 km
+ Snelweg afrit 2,36 km
+ Supermarkt 0,15 km
+ Kinderopvang 0,25 km
+ Basisonderwijs 0,25 km
+ Voortgezet Onderwijs 0,89 km

Aanvaarding:
In overleg.

Zou dit jouw nieuwe thuis kunnen zijn? Plan snel een bezichtiging en we leiden je graag rond!

Disclaimer: 
De vermelde afmetingen zijn circa maten. Eventuele afwijkingen tussen de werkelijke en opgegeven circa maten/oppervlakten leiden niet tot enig recht op schadevergoeding. Er kunnen geen rechten worden ontleend aan de inhoud van deze specificaties.

  • 101 m2
  • 117 m2
  • 3

Kenmerken Van Diemenhof 37

Overdracht

Vraagprijs€ 369.000,- k.k.
AanvaardingIn overleg

Oppervlaktes en inhoud

Perceel oppervlakte117 m2
Woonoppervlakte101 m2
Inhoud358 m3

Bouw

SoortEengezinswoning
BouwvormBestaande bouw
Bouwjaar1997
Dak typeLessenaardak
IsolatievormenDubbelglas, Volledig geïsoleerd, HR glas
EnergielabelA

Indeling

Aantal verdiepingen3
Aantal kamers5
Aantal slaapkamers3
Aantal badkamers1

Maandlasten

Ligging Van Diemenhof 37

Voorzieningen

Centraal gelegen informatie over de buurt

Aantal inwoners

In de gemeente

155.699

Vergelijkbaar woningaanbod